Care homes

  • For residential care, assisted living and group homes
  • For bed wards in health centres
     

Download new DWG images:

Gaius Sense XL

  • For the elderly and members of other special groups
  • To support independent action, also leaving room for an assistant

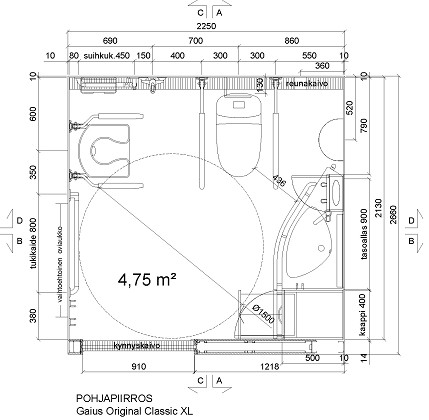
Gaius Classic XL

  • For the elderly and members of other special groups
  • To support independent action, also leaving room for an assistant

Gaius Sense 2XL

  • For assisted operation of the elderly, disabled, mentally handicapped, and members of other special groups
  • Floor-mounted toilet seat
  • Enables the use of a shower bed
  • Enables the use of a ceiling-mounted lifting system

Gaius Sense 3XL

  • For assisted operation of the elderly, disabled, mentally handicapped, and members of other special groups
  • With a floor-mounted toilet seat
  • Enables the use of a shower bed
  • An optional washing machine cabinet
  • Enables the use of a ceiling-mounted lifting system

Gaius Original Classic 3XL

Gaius Sense Plus

  • For the elderly and members of other special groups, to support independent operation
  • Enough room for an assistant to work ergonomically
  • A height-adjustable basin unit with plenty of lowering room

Gaius Original Classic Plus

Gaius Sense 2XL W

Gaius Original Classic 2XL W