Hoivakodit

Valtioneuvoston asetus rakennuksen esteettömyydestä on astunut voimaan 1.1.2018.
https://www.finlex.fi/fi/laki/alkup/2017/20170241

Mallipohjat ovat uuden asetuksen mukaisia ja soveltuvat mm.:

  • palvelu-, hoiva- ja ryhmäkoteihin
  • terveyskeskusten vuodeosastoille
     

Lataa tästä uudet DWG kuvat:

Gaius Sense XL

  • ikääntyneille, vammaisille, kehitysvammaisille ja muille erityisryhmille avustettavaan toimintaan

Gaius Original Classic XL

Gaius Sense XL DUO

  • korkeussäädettävällä DUO WC-istuimella

Gaius Original Classic XL DUO

  • korkeussäädettävällä DUO WC-istuimella

 Gaius Sense 2XL

  • ikääntyneille, vammaisille, kehitysvammaisille ja muille erityisryhmille avustettavaan toimintaan
  • mahdollistaa suihkuvaunun käytön
  • mahdollistaa kattonostinjärjestelmän käytön

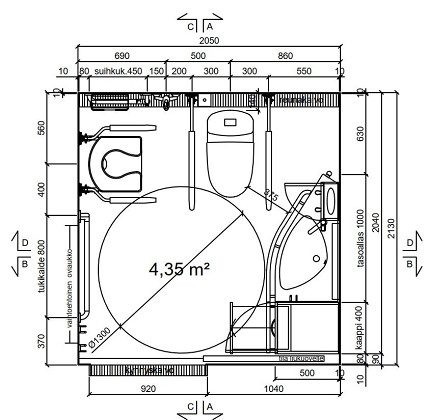
 Gaius Original Classic 2XL

Gaius Sense 3XL

  • ikääntyneille, vammaisille, kehitysvammaisille ja muille erityisryhmille avustettavaan toimintaan
  • mahdollistaa suihkuvaunun käytön
  • pesukonekaappimahdollisuus
  • mahdollistaa kattonostinjärjestelmän käytön

Gaius Original Classic 3XL

Gaius Sense Plus

  • ikääntyneille ja muille erityisryhmille itsenäisen toiminnan tueksi
  • myös avustajalla on tilaa työskennellä ergonomisissa asennoissa
  • korkeussäädettävässä tasoaltaassa on runsaasti laskutilaa

Gaius Original Classic Plus

Gaius Sense 2XL W

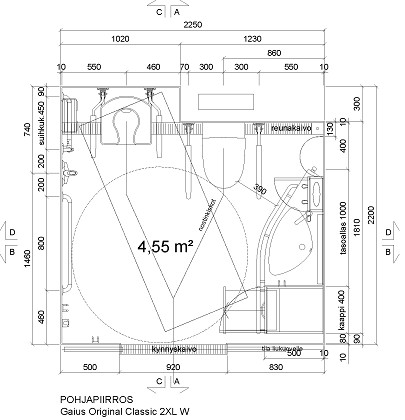
Gaius Original Classic 2XL W