Veivikorkeudensäätölaite Original-altaalle

Uusi altaiden korkeudensäätömallisto StandardLine tarjoaa helppoutta, monipuolisuutta ja valinnanvapautta kylpyhuoneeseen. Laitteisto ja putket jäävät suojakotelon taakse siististi piiloon, jolloin allaskokonaisuudesta tulee tyylikäs.

StandardLine -korkeudensäätölaitteen avulla altaan korkeutta voidaan säätää portaattomasti. Korkeudensäätöväli on 300 mm ja altaan käyttökorkeudeksi suositellaan 700 mm korkeudensäädön ollessa alimmassa asennossa.

Toimitus sisältää kiinnitystarvikkeet, vesilukon, joustavan viemäriputken, sekä liitosletkut hanalle.

Laite on rekisteröity lääkinnällinen laite ja valmistettu standardin DS/ISO 17966:2016 mukaan. Korkeudensäätöyksikkö kestää 200 kg kuorman ja Orignal-altaan kuormituskestävyys on 230 kg.

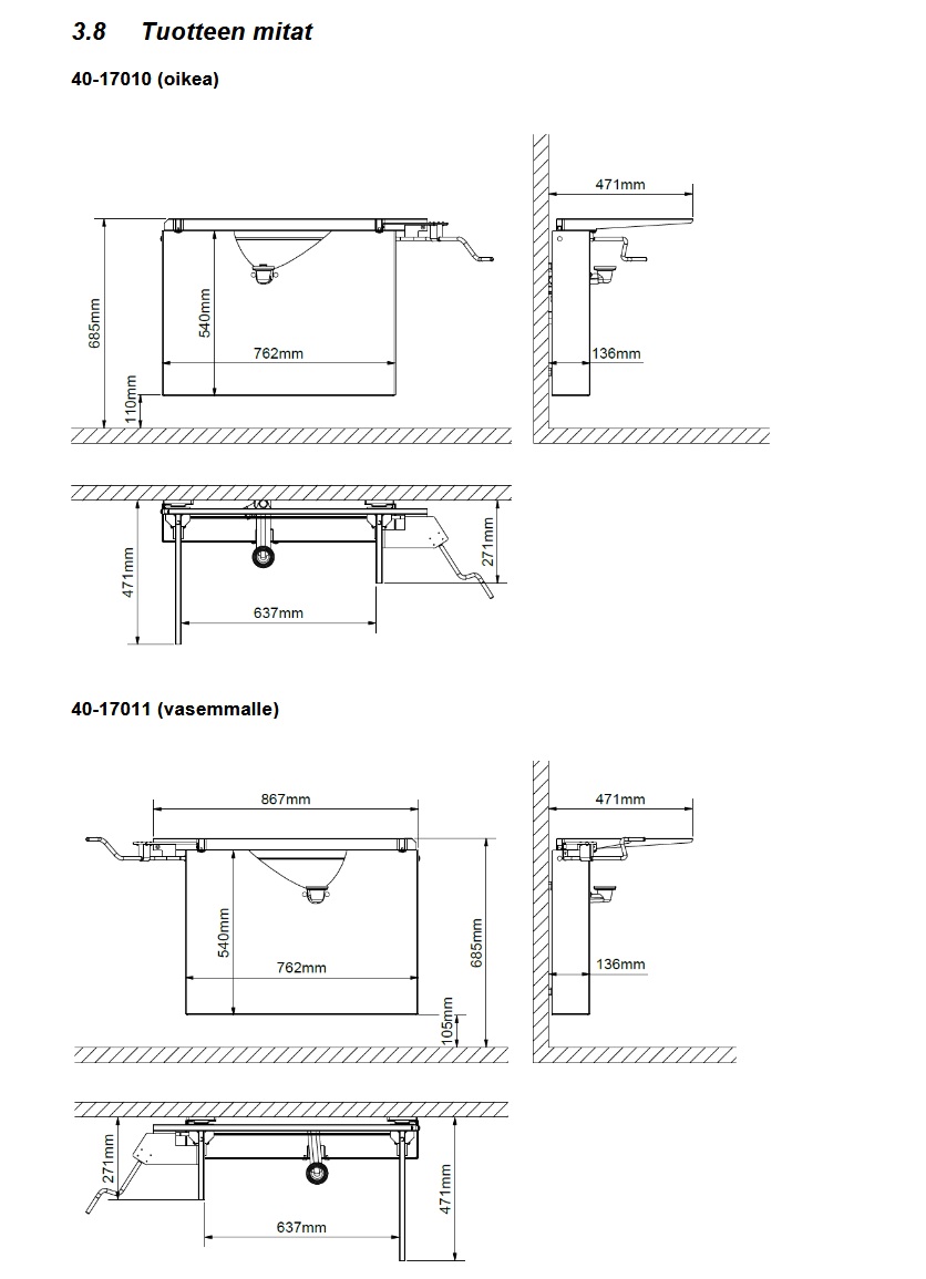
Tuotenumerot:
R40-17010 - StandardLine, Veivikorkeudensäätölaite Original-altaalle, oikea
R40-17011 - StandardLine, Veivikorkeudensäätölaite Original-altaalle, vasen

Tuotetiedot

  • Väri: valkoinen